CPAS de Laeken
- Date 1999-2003
- Adresse Rue Stéphanie, 27-29 – 1020 Laeken
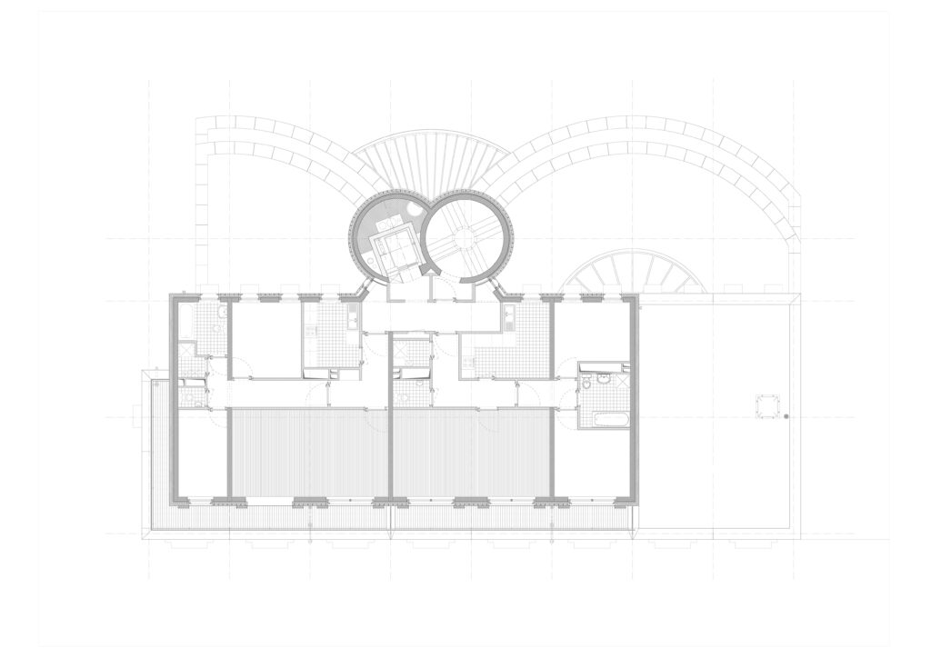
Le projet du CPAS de Laeken s’inscrit dans un contexte de revitalisation urbaine d’un quartier populaire de Bruxelles. Le terrain situé entre le chemin de fer et la rue Stéphanie accueille un bâtiment au programme associant bureaux et services avec onze logements. Logiquement, les espaces ouverts au public et les bureaux du CPAS sont organisés respectivement au rez-de-chaussée et au premier étage. Véritable lieu de rencontre au service de la population, le rez-de-chaussée rassemble une école des devoirs, une salle d’étude avec bibliothèque et un restaurant social. La disposition des espaces est logique et sans détours. L’entrée principale située rue Stéphanie ouvre sur un hall qui distribue les circulations entre les différents services du rez-de-chaussée installés dans deux volumes dont le plan rappelle celui d’une abside ainsi que vers un couloir qui conduit aux circulations verticales. Les quatre étages de logements proposent des appartements de tailles variées (d’une à trois chambres), la volonté du CPAS étant d’offrir des appartements destinés aux familles nombreuses. Rare dans le logement public, l’intervention de l’architecte concerne non seulement la commande purement architecturale mais également l’équipement, Vandenhove étant notamment chargé de dessiner les cuisines. Autre élément qui renforce la valeur qualitative du projet, une terrasse en bois court au dernier étage en retrait et offre aux appartements un bel accès vers l’extérieur. Le traitement des façades révèle lui aussi quelques singularités et le bâtiment propose deux visages. Vers la rue Stéphanie, la façade s’inscrit sans conteste, avec calme et modestie, sans rupture d’alignement ni de gabarit. Par contre, à l’arrière, le bâtiment se veut plus démonstratif en soutenant un jeu de volumes dominé notamment par les deux silos abritant les circulations verticales et rappelant peut-être le projet de jeunesse du Centre de transfusion sanguine. Pour l’ensemble, Vandenhove associe petit granit, brique sombre et bois. La façade est également le lieu de revendication des idéaux défendus par le CPAS. Des extraits de la Déclaration universelle des droits de l’homme apparaissent dans les garde-corps sablés. Outre les textes, cette ambition de porter la vocation humaniste de l’architecture se marque encore par les interventions de Léon Wuidar qui dessine différents motifs abstraits sur les lambris du restaurant social.
- Description du fonds
Photographies, correspondance, plans, coupes, élévations…
- Volumétrie 16 boîtes d'archives (1,92 m)
- Bibliographie
CPAS-OCMW, Antenne sociale – Sociale Antenne, Bruxelles – Laeken – Brussel, Bruxelles, CPAS Bruxelles, s.d.
- AUTEUR ET DATE DE LA NOTICE Sébastien Charlier, 2023